PF FUENTES

San Pedro, México.

2014-2015

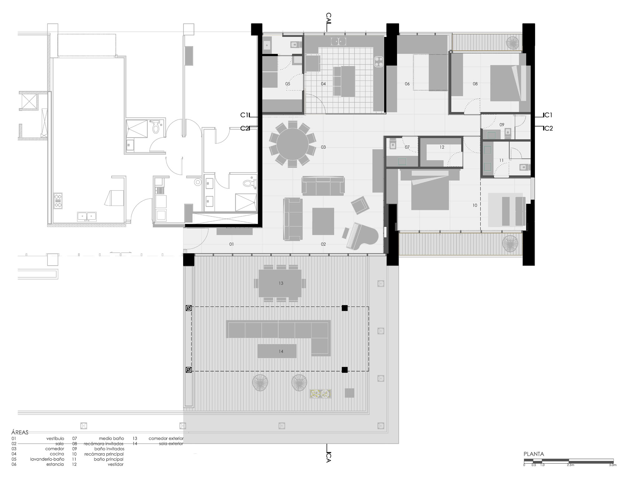
Superfície: 280 m2

Construído. 

Arquitectura

David Pedroza Castañeda.

Colaboradores Arquitectura: Ileana Luna Peralta..

Construcción

P+B Construcción

Hyaell Briones de la Garza.

Colaboradores Construcción: ileana Luna Peralta, Jose García Portales.

Fotografía

FCH Fotografía.

El diseño interior de un Penthouse busca ser el elemento de conciliación entre distintas condicionantes.

El ecléctico mobiliario del departamento, ya en posesión de los propietarios debía dialogar con la identidad propia del inmueble, contemporánea, industrial, con un claro ritmo vertical.

Se optó por una estética abstracta, de líneas limpias que sirven de fondo para la decoración compuesta por materiales cálidos que conviven con acabados industriales.

 

La mayor parte de los muros de sala/comedor se revisten con madera de tzalam de gran formato que dialogan con láminas de acero al carbón que revisten un gran muro.

 

Mientras tanto, elementos como cubiertas o lavabos se ejecutan con líneas limpias en concreto pulido.

Se cuidan minuciosamente los detalles para conseguir la mayor limpieza y abstracción posible. Las puertas se pierden entre los acabados para conseguir continuidad entre los planos, eliminando elementos concretos como marcos o bisagras.

La sensación de amplitud interior se enfatiza mediante una serie de espejos ahumados cuya verticalidad se enfatiza mediante una celosía de listones de madera de tzalam que repiten el ritmo vertical de la cancelería.

La estética del departamento es la de opuestos que dialogan. El mobiliario ecléctico se recibe con la neutralidad y la estética abstracta con la calidez de sus materiales.