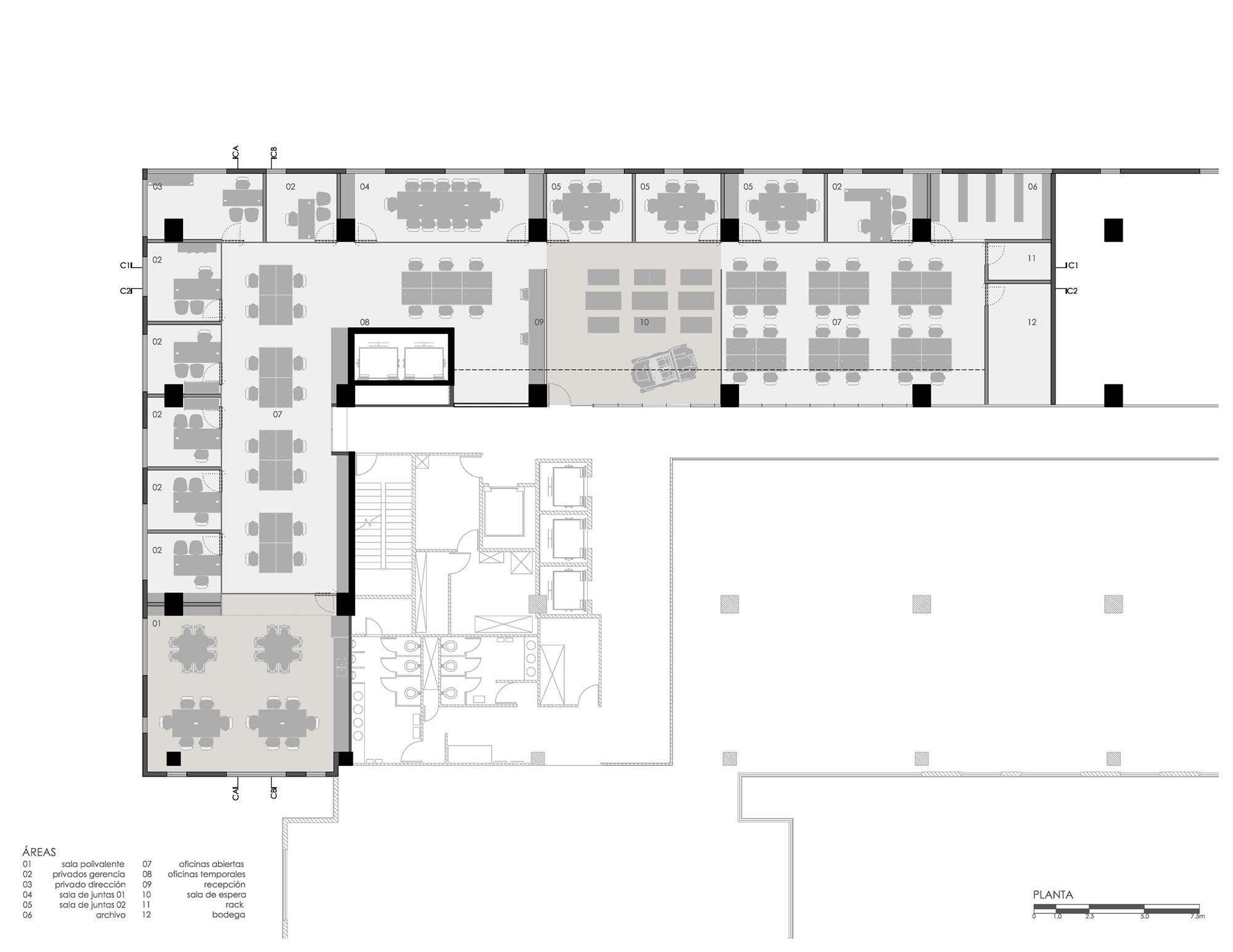
P+0, es un despacho de arquitectura y construcción establecido formalmente en
Monterrey en el 2013 tras su inicio en Barcelona en el 2011.
El signo “+” en el nombre del estudio formaliza la voluntad de asociación entre
profesionistas del mundo de la edificación.
La guía del taller es la "Ingenuidad Trabajada"; donde conceptos arriesgados y
soluciones proyectuales y constructivas "ingénuas" pueden hacerse posibles gracias a
un correcto balance entre el conocimiento, experiencia e implicación de los distintos
agentes involucrados en el proyecto.
Su fundador, David Pedroza Castañeda, es Arquitecto por la Universidad de Monterrey
con Master en Estructuras por la Fundación Politécnica de Cataluña.
Labora en reconocidos despachos de Barcelona y Monterrey antes de fundar P+0
Arquitectura en el 2011. Funda, asociado con Hyaell Briones, la constructora P+B
Arquitectura y Construcción en el 2014.
El trabajo del estudio ha sido galardonado con la medalla de plata en la XIII Bienal
Mexicana de Arquitectura, El XXIII premio Obras Cemex y el Premio Obra del Año 2014
de CNN/Expansión. El estudio ha sido nominado para reconocidos premios
internacionales además de aparecer en importantes publicaciones nacionales e
internacionales.













