C-O-H47

Monterrey, México.

2016-2017

Superficie: 11,493.40 m2

Arquitectura

Cesar Rodarte Arquitectos y P+0 Arquitectura. 

David Pedroza Castañeda y Cesar Rodarte 

Colaboradores Arquitectura: Claudia Jannuzzi, Ileana Luna, Hugo Regalado, Laura Hiroko.

Colaboradores Construcción. 

Juan Manuel Murillo.

Estructuras

 Juan de Dios Zendejas Martinez 

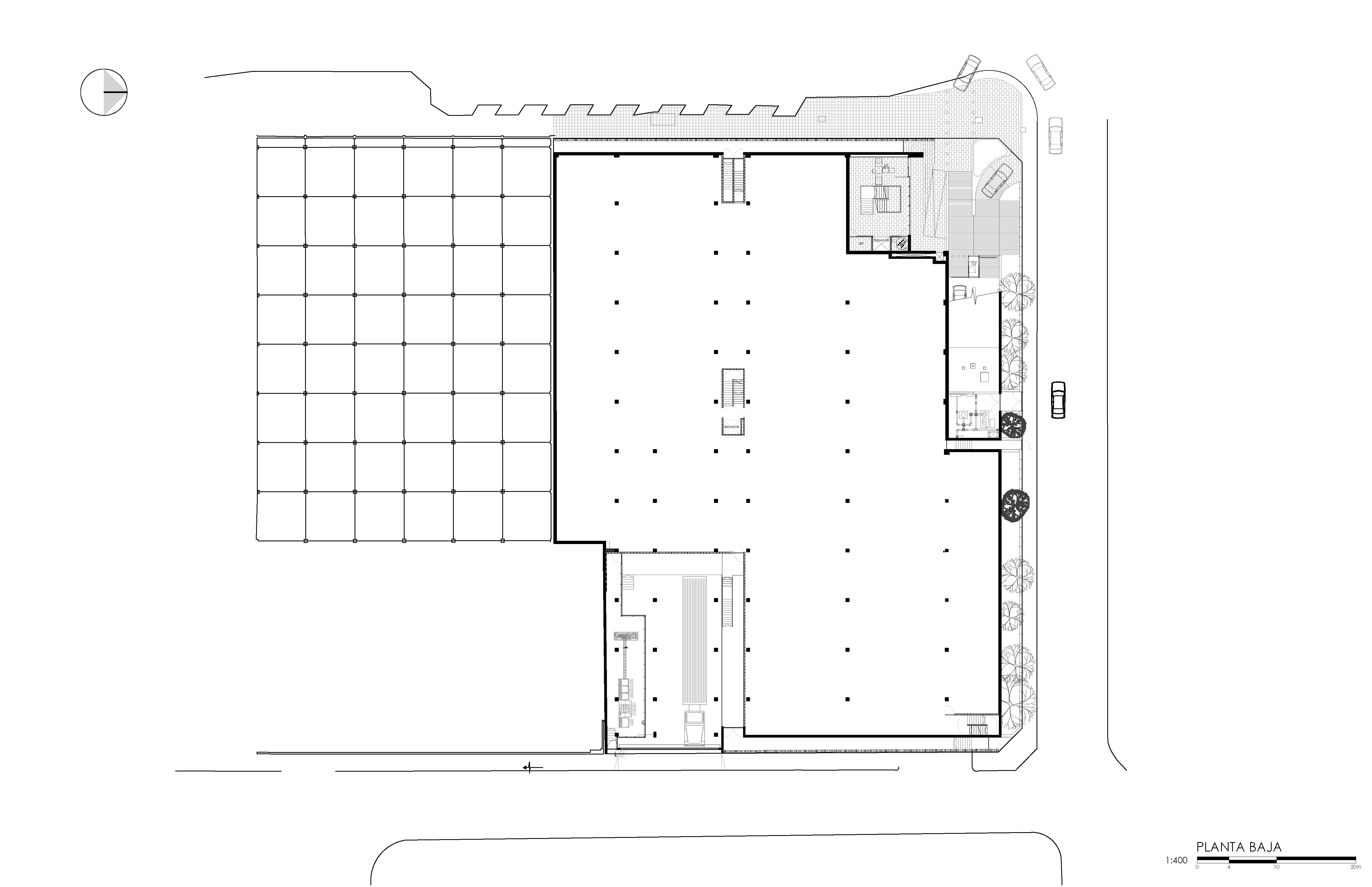
En un generoso terreno del centro de Monterrey se plantea un edificio de oficinas y almacén.

El sencillo programa del edificio permite sacar partido a la situación del terreno, en la esquina de una avenida principal y una calle secundaria para provocar una interesante intervención urbana.

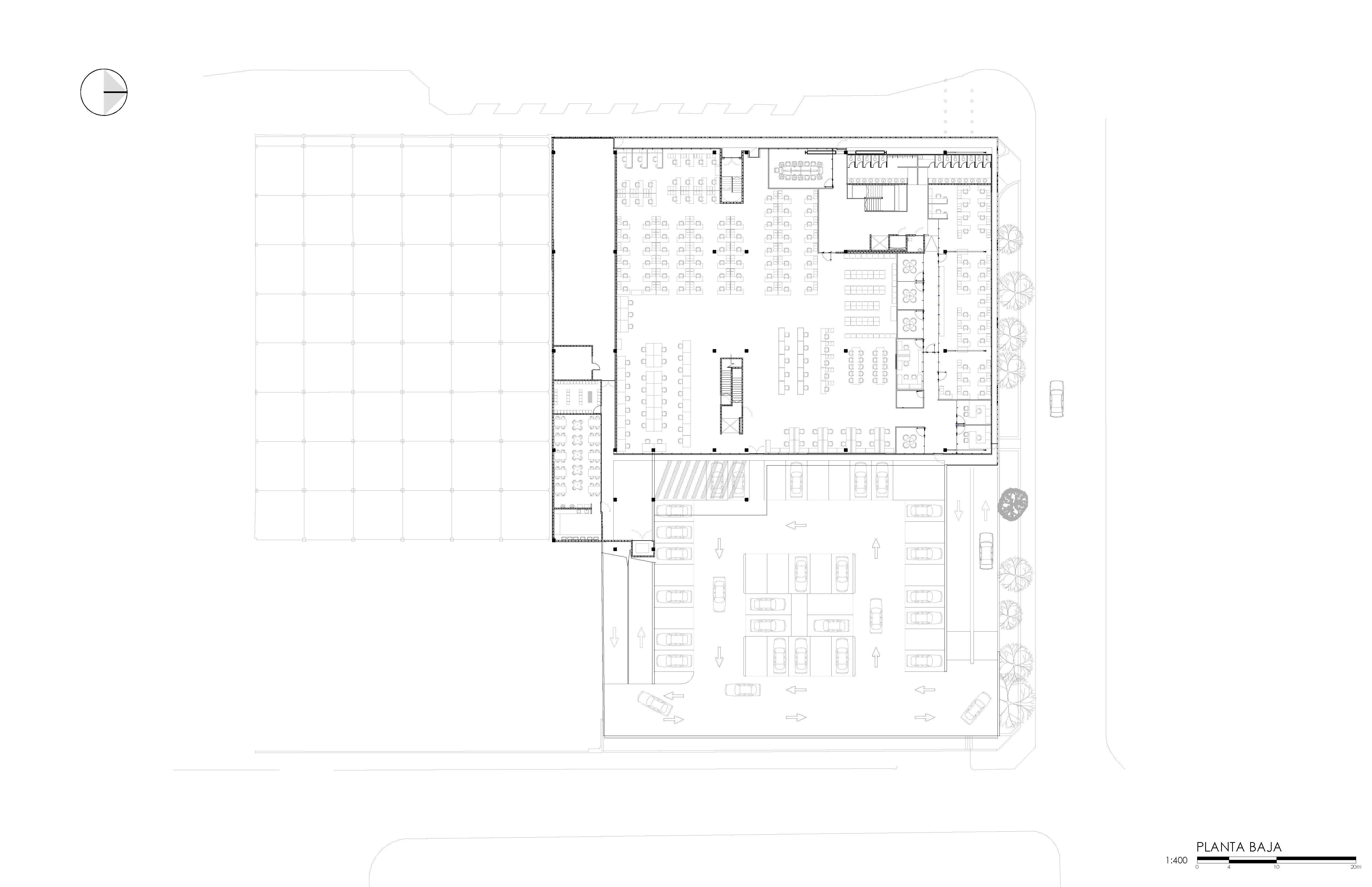
En las dos primeras plantas se proyecta un enorme almacén sobre el cual se ubican unas oficinas. La agresividad hacia el entorno que provocaría este gran volumen de construcción se minimiza al ubicar en la esquina de manzana la rampa que va hacia el estacionamiento de las oficinas.

La planta de oficinas, sin embargo, no reduce sus dimensiones. Ocupa completamente la esquina y queda suspendida sobre el acceso por un dramático cantiléver que genera una plaza techada. El edificio parte de un módulo estructural repetitivo en forma de retícula que simplifica su construcción y aprovecha los cambios de geometría como rampas o voladizos para dar un mayor carácter la volumetría.

La estética del entorno sirve como inspiración para generar una imagen industrial que saca partido de su sistema constructivo de estructura metálica y concreto. Las fachadas se resuelven dejando aparente la estructura principal y resolviendo celosías y enrejados con la repetición de tubos y mallas de acero galvanizado. Las mallas se repiten también en una franja de gaviones que facilita la conservación de varios árboles existentes el sitio, lo que hace aún más amable a su entorno la presencia de este gran edificio